製品
製品説明
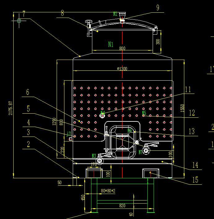
このタイプのコンテナはフォークリフト用の穴またはフレーム構造で設計されており、フォークリフトが直接フォークを挿入して取り扱えるため、積み降ろしプロセスが簡素化されます。

1. 一体型フォークリフトポケット(必須機能)
これが決定的な特徴です。すべてのフォークリフトワインタンクには、頑丈な補強鋼製のフォークリフトポケット(通常2〜4個、タンクの底部または側面下部に対称的に配置)が備わっています。これらのポケットは、タンク自体と中身のワインの総重量(500ガロン満タンで4,500ポンド以上!)に耐えるように設計されています。重要なのは、ポケットがフラッシュまたは埋め込み式であること—突き出ていないため、移動時にラック、ホース、その他の設備に引っかかる心配がありません。外部ブラケットは決して使用しません—重荷重で簡単に破損するからです。
2. 積み重ね可能な設計(省スペース保管)
ほとんどのフォークリフトワインタンクは空の状態(場合によっては部分満タン時、重量制限厳守)で積み重ね可能です。タンク上部には補強リムがあり、別のタンクの底部にぴったりとはまるため、フォークリフトで2〜3段積みが可能です。これは中小規模ワイナリーにとって革命的な機能—オフシーズンの空タンク保管に巨大な倉庫が不要になります。プロのヒント:メーカーの積載制限を必ず確認—安全上の理由から、明示的に対応可能と記載されていない限り満タンの積み重ねは絶対に避けてください(ほとんどのタンクは非対応です)。
3. 耐久性と軽量構造の両立(フォークリフト操作に最適化)
これらのタンクはほぼ例外なく304または316ステンレス鋼(食品グレード、耐食性、酸性ワインに最適)製です。ただし鋼板厚は慎重に調整—ワイン保持に十分な強度を持ちつつ、標準倉庫用フォークリフトで移動可能な軽さ(重機不要)を実現。底部には頑丈な鋼製フレームも補強されており、満タン時でもフォークリフト挙上時の歪みや亀裂を防止します。
4. 可搬性に優れたサイズバリエーション(フォークリフト機動性に適合)
フォークリフトワインタンクはモジュラー式で機動性のあるサイズ(50ガロン/小規模試験用~1,000ガロン/小ロット量産用)をラインナップ。それ以上の大型タンクは、ワイナリーの狭い通路・低天井・急カーブでフォークリフト安全移動が不可能なため製造されません。この可搬性により、圧搾機→発酵エリア→熟成室→瓶詰めラインとタンクを直接移動可能—固定タンク間でのワインポンプ移送(酸化リスク要因!)を繰り返す必要がなくなります。
5. フォークリフト操作を考慮したアクセスポイント(醸造作業効率化)
バルブ、サンプリングポート、メンテナンスハッチはすべて、フォークリフト移動時に作業しやすい高さに配置。例えばドレンバルブは下部側面(ただしフォークリフトの爪と接触しない位置)、サンプリングポートは胸元高さ—ワインサンプル採取時に梯子昇降やタンク降下が不要です。機種によっては高さ調整可能なマーカー付き—ホースや瓶詰めライン接続に最適な高さへフォークリフトで精密調整でき、補助スタンドが不要です。
6. 耐衝撃性外装(倉庫内取り扱い耐久性)
現実を言えば—フォークリフト操作は常に完璧とは限りません。これらのタンクには補強コーナーガードと耐スクラッチ鋼板仕上げを採用。フォークリフトポケット内側には厚手ゴム/プラスチックライナーを装備—爪によるタンク傷つき(経時的な腐食原因でワイン劣化)を防止。通常の非フォークリフト対応ワインタンクに重機で移動を試みた場合と比べ、はるかに高い耐久性を発揮します。
7. 標準ワイナリーアクセサリー互換性(専用工具不要)
フォークリフトワインタンクは既存の標準醸造機器(冷却ジャケット、加熱要素、ラッキングアーム、バング)とすべて互換性あり。唯一の違いは、これらのアクセサリーを装着したまま(固定されていれば)フォークリフトでタンク移動可能な点。これにより大幅な時間節約—タンク移動時のホース接続解除&再接続が不要に。例えばタンク内でワイン発酵→冷却ジャケット装着→フォークリフトで低温室移動→熟成、という一連の工程を内部ワインに触れることなく実行可能です。
見積もりを取得
梱包と配送
おすすめ製品